
OBJEKTBESCHREIBUNG
Finden Sie Ihren neuen Geschäftsstandort im Poppenbütteler Bogen – zentral gelegen in Hamburg-Poppenbüttel! Diese Gewerbefläche erfüllt alle Anforderungen Ihres Unternehmens.



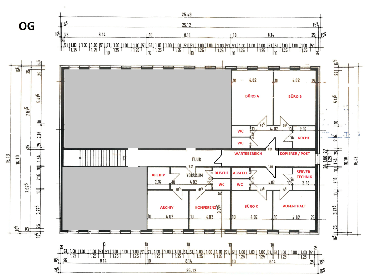
Mit einer großzügigen Nutzfläche von ca. 190 qm im Erdgeschoss sowie 6 Büroräumen von insgesamt ca 160 qm im 1. OG präsentiert sich diese Immobilie als idealer Standort für Ihr Geschäft. Die helle, weiß gestrichene Halle im Erdgeschoss ist durch ein Rolltor mit einer Durchfahrtshöhe von 2,68 m mit den meisten kleineren Kastenwagen und Sprintern bequem befahrbar. Ein kleines „Meisterbüro“ mit Tageslicht, separatem WC und kleinem Abstellraum macht die Halle im Erdgeschoss zu einer unabhängig nutzbaren Arbeitseinheit.



Das Treppenhaus, das zum 1. OG führt, erreichen Sie sowohl durch einen Zugang in der Halle als auch durch die Haupteingangstür an der Straßenseite. Eine Glastür trennt Ihren Bürotrakt von den restlichen Büroräumen im Haus und verschafft Ihnen durch einen eigenen Flurabschnitt einen zusätzlichen Arbeitsbereich. Ein Notausgang befindet sich am Ende des Flurs. Insgesamt 6 praktisch aufgeteilte Büroräume, alle durch Fenster gut belichtet, versprechen ein angenehmes Arbeitsklima. Ein Serverraum, eine kleine Teeküche mit Geschirrspüler, 4 WCs, eine Duschkabine sowie ein Abstellraum und ein Archivraum runden das Angebot ab. Die Räumlichkeiten lassen sich bei Bedarf in 3 unabhängige Arbeitseinheiten unterteilen.




Die Räume sind zum Teil mit Laminat ausgelegt, zum Teil mit Teppichboden, überwiegend weiß gestrichen und mit Deckenleuchten ausgestattet. Eine Klimaanlage sorgt in allen Räumen stets für angenehme Temperaturen. Auf dem Dach befindet sich eine Photovoltaikanlage, die Ihre Stromrechnung entlastet. Kameras und eine Alarmanlage sorgen sowohl in der Halle als auch im 1. OG für Ihre Sicherheit.








Alle Informationen haben wir vom Vermieter erhalten. Die Grundrisse sind möglicherweise nicht maßstabsgerecht. Alle Angaben ohne Gewähr.
LAGEBESCHREIBUNG
Der Poppenbütteler Bogen profitiert von seiner Lage in einem gut zugänglichen und dennoch ruhigen Hamburger Stadtteil. Das Gebiet zeichnet sich durch eine ausgewogene Mischung aus Wohn- und Geschäftsbereichen aus, wodurch eine optimale Verbindung zu potenziellen Kunden und Geschäftspartnern gewährleistet wird. Mit seinem breiten Spektrum an Handwerksunternehmen, Autohäusern und weiteren Betrieben gilt der Poppenbütteler Bogen als wichtiger Wirtschaftsstandort, der aus Poppenbüttel nicht mehr wegzudenken ist.
Die Lage bietet eine sehr gute Verkehrsanbindung, sowohl mit dem Auto als auch mit öffentlichen Verkehrsmitteln. In der Nähe befinden sich wichtige Verkehrsachsen, die eine schnelle Erreichbarkeit der Hamburger Innenstadt, anderer Stadtteile sowie der A7 gewährleisten. Zusätzlich sind in der Umgebung verschiedene Dienstleistungen, Einkaufsmöglichkeiten und Freizeitangebote vorhanden, die für Mitarbeiter und Kunden attraktiv sind.

Courtagepassus:
Nach erfolgreichem Abschluss des Mietvertrages ist die Vermittlungsprovision von 2 Nettokaltmieten (7200€) plus 19% MwSt vom Mieter / der Mieterin an Love to Live Immobilien zu zahlen.
